Dipl.-Ing. Vera Wache
Gartenberatung | Gartenplanung und Pflanzpläne
Freiflächengestaltungspläne | Vorträge und Seminare
Gartenberatung
Sie befinden sich bereits in der Umsetzung Ihrer Außenanlagen im Raum Allersberg und haben Fragen zu der
- optimalen Standortfrage der verschiedenen Nutzungsbereiche im Garten hinsichtlich Besonnung, Funktionalität und kurzer Wege
- Organisation von Verkehrswegen (Parkplätze, Carports, Wege, Sitzplätze…)
- Neuanpflanzung von Hecken und Bäumen (Leitpflanzen), deren Wuchsverhalten sowie den dazu notwendigen Abstandsflächen
- Materialwahl und -möglichkeiten für Mauern, Treppen, Terrassen, Wege und Sitzbereiche
- Umsetzung eines naturnahen Gartens, der klimaangepasst ist, wenig Bewässerung erfordert und insektenfreundlich ist?
Gerne helfe ich Ihnen weiter und biete Ihnen Hilfe bei einem Beratungsgespräch vor Ort an.
Gartenplanung
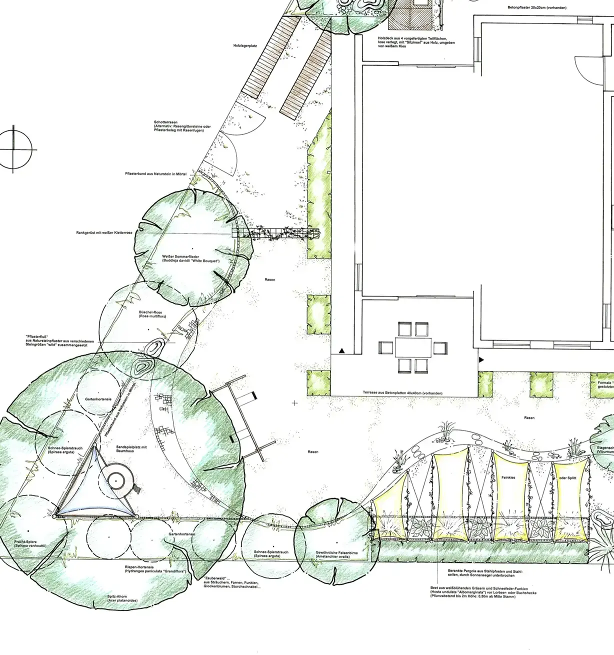
Eine gelungene, in sich stimmige und ästhetisch anspruchsvolle Gartenplanung ist die Grundlage für alle künftigen Entscheidungen bei der Umsetzung Ihres Gartens.
Ich entwickle individuelle Gesamtkonzepte für Außenanlagen mit Blick auf Einzigartigkeit, Nachhaltigkeit, Funktionalität und Aufenthaltsqualität.
Ein für Sie angefertigter Gartenplan im Maßstab 1:50 beinhaltet neben dem Design des Grundstücks alle Angaben zu Materialien, Leitpflanzen, Nutzungsmöglichkeiten und späteren Detailpflanzungen durch Stauden.
Pflanzpläne
Eine perfekte Pflanzplanung verbindet das beabsichtigte Erscheinungsbild einer Pflanzfläche (Blühaspekt, Habitus, Blattformen etc.) mit den Standortansprüchen der gewählten Stauden, der örtlichen Beschaffenheit des Bodens und des Kleinklimas.
Gerne erstelle ich Ihnen im Anschluss an die Planung des Gartendesigns detaillierte Pflanzpläne im Maßstab 1:20, die genau auf die Standortbedingungen in Ihrem Garten abgestimmt sind und das Wuchsverhalten von Stauden, Gräsern, Kräutern sowie von Bäumen und Hecken berücksichtigen.
Freiflächengestaltungspläne
Qualifizierter Freiflächengestaltungsplan mit Eingriffs- und Ausgleichsbilanzierung nach Bayerischer Kompensationsverordnung (BayKompV) für Maßnahmen im Außenbereich
Vorträge / VHS-Kurse / Seminare
Neben meiner planerischen Tätigkeit halte ich Vorträge zum Thema naturnahe, klimaresiliente Gärten und gebe regelmäßig VHS-Kurse in Allersberg und Umgebung.
Ich vermittle praxisnahes Wissen zur Methodik der Gartenplanung, naturnahen Pflanzkonzepten und nachhaltiger Freiraumplanung.
Auf Anfrage biete ich individuelle Seminare für Gartenbesitzer und Garten- und Landschaftsbauer an.
Beispielthemen für Vorträge und Seminare:
- Zurück zur Natur – Warum Ihr Garten mehr kann als Design
- Kreative Gartengestaltung – Methodik und Umsetzung
- Stauden- und Gehölzplanung im Zeitalter des Klimawandels
- Nachhaltige Grünflächen ohne Bewässerung
- Pflegeleichte Gärten – Was heißt das heute?
Vera Wache – Dipl.-Ing. Raum- und Umweltplanung – Gartenplanung und Freiflächengestaltungsplanung
Ich bin Raum- und Umweltplanerin in Allersberg und gestalte private Freiflächen von Einfamilienhäusern, Mehrfamilienhäusern, landwirtschaftlichen Hofflächen, Reiterhöfen, Nahwärmeversorgungsanlagen, Gewerbebetrieben…
Mit Kreativität, Fachwissen, Leidenschaft und einem Gespür für Details entwickle ich individuelle Konzepte für meine Kunden im Einklang mit der Natur.
Kontakt
Telefon
0174 / 7735952
E-Mail
info@gartennachplan.de



